Projeto para Construção a Seco

Projeto para Construção a Seco

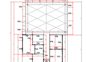
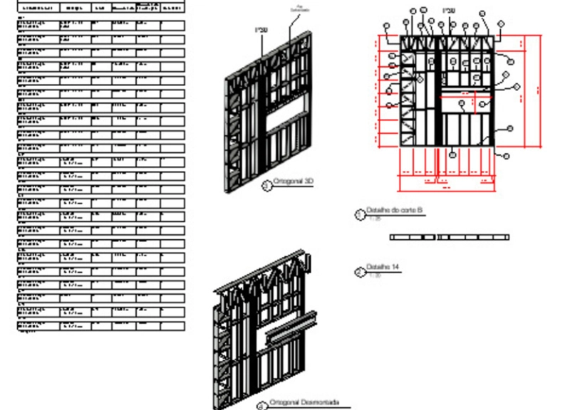
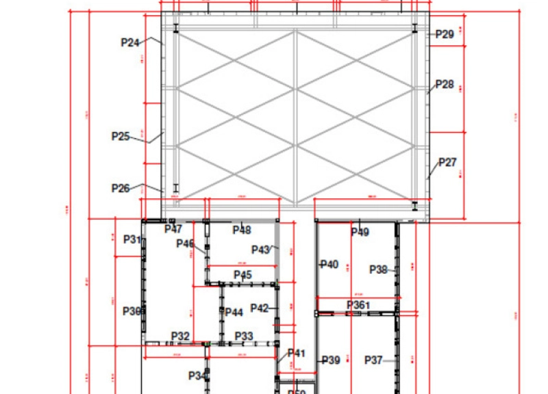
Nas imagens ilustradas tenho algumas pranchas de detalhe no sistema construtivo Light Steel Frame.
Os projetos desenvolvidos com a tecnologia BIM trazem mais agilidade e qualidade para as obras, pois consigo ter a visão de todo o projeto de forma detalhada.

Compartilhe:

Voltar

Redes sociais

Copyright 2025 © Coofra | Desenvolvido por Cayman Sistemas

Cookies personalizados

Necessários (2)

Cookies necessários são essenciais para o funcionamento do site, sem eles o site não funcionaria adequadamente. (Ex. acesso a áreas seguras do site, segurança, legislação)

 
Gerenciador de cookies
www.coofra.com.br
 
Marketing (2)

Cookies de marketing, ou propaganda rastreiam a navegação dos visitantes e coletam dados a fim de que a empresa possa criar anúncios mais relevantes, de acordo com tal comportamento.

 
Facebook Pixel
DoubleClick
 
Estatísticas (1)

Cookies de estatísticas, ou analytics traduzem as interações dos visitantes em relatórios detalhados de comportamento, de maneira anonimizada.

 
Google Analytics
 

Aviso de cookies

Nós usamos cookies para melhorar sua experiência de navegação no portal. Para mais informações sobre quais tipos de cookies você pode encontrar nesse site, acesse "Definições de cookies". Ao clicar em "Aceitar todos os cookies", você aceita o uso dos cookies desse site. Portal de privacidade.